­






spring 2024 banner

Welcome to the BNMS Annual Spring Meeting
on 13 - 15 May 2024 in Belfast

Exhibitor Manual

Address: ICC Belfast, 2 Lanyon Pl, Belfast BT1 3WH

Travel Information to the venue

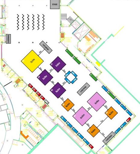
Exhibition Hall will be in Hall 1

View the exhibition floor plan here - updated 27.02.2024

Shell Scheme Stands - come as branded only (no longer an option for unbranded stands)
These stands include socket, spot lights, branded counter, bus stop and backdrop.

Graphics for Shell Scheme stands 0NLY - deadline 26th April 2024
View the Artwork Guide for Shell Scheme stands here
For more information about the Shell Scheme graphics contact Graphics@exponodisplays.com

Space only stands - View instructions here

Find out what's included with your stand here

Forms for Shell Scheme stands only -

Shell Scheme Exhibitors Risk Assessment

Forms for Space only stands only -

BNMS Electrics Order Form UPDATED - Deadline 1st May 2024

Forms for all stands -

Health and Safety Declaration Form

Transport Order Form - Deadline 26th April 2024

Catering - contact charlotteweston@bnms.org.uk - Deadline of 14th April 2024

Exhibition Services - Are you after exhibition stand building, portable displays, printing, lighting, promotional merchandise? Select here to find out more

Floral Order - email hello@mementobelfast.com or visit the website https://www.mementobelfast.com/

Furniture Order - select here to find out more

IT Services - IT Order form

Photographer - Tim North Photography timnorthphotography@gmail.com

Exhibition Opening Times:
Monday 9.00 - 19.00 (including President's reception)
Tuesday 08.00 - 17.00
Wednesday 08.45 - 13.00

SET UP TIMINGS

For space only stands:
Build from 9am on Sunday 12th May
For shell scheme stands:
From 3pm on Sunday 12th May

BREAKDOWN TIMINGS

For space only stands:
From 3pm on Wednesday 15th May
For shell scheme stands:
From 2pm on Wednesday 15th May

Delegate break times:
Monday 13th May
12.45 - 14.00
15.30 - 16.15
Tuesday 14th May
10.30 - 11.15
12.45 - 14.00
14.45 - 15.15
Wednesday 15th May
11.30 - 12.30

EXHIBITOR LUNCH TIMINGS Exhibitor lunches will be served 30 minutes before delegate lunches apart from Wednesday when they will be served when the sessions restart after the lunch break.

Company logo, url and badge request updates - contact carolineoxley@bnms.org.uk by 1st March 2024

Dinner Tickets & other extras - Deadline of 14th March 2024

Catering - Deadline of 14th April 2024

Transport Order Form - Deadline 26th April 2024

BNMS Electrics Order Form - Deadline 1st May 2024

Access View the Access Document here

Badges Collect your badges on the day at the registration desk

Cleaning
General cleaning of the venue will take place during the event build and prior to the event opening each day.
Any unwanted paper or packaging by exhibitors should be placed in the aisles (not causing an obstruction) at the end of each day for collection and recycling.
It is the responsibility of each exhibitor to make sure their stand is kept clean and tidy.
If an exhibitor requires ICC Belfast to clean their stand, this can be arranged for a fee.
ICC Belfast will not dispose of bulk exhibition waste If such materials are left behind, the cost of disposal will be recharged to the exhibitor.

Delegate lists Delegate lists will be sent out to each company. We will not be giving out physical delegate lists this year

Deliveries and Collections
Deliveries and collections can only be made during contracted tenancy (12th May 7am to 15th May 9pm).

Any deliveries attempted outside of this time will be turned away.

All items must be removed by 9pm on Wednesday 15th May

Because of this we highly recommend using the Transport Order form for Onsite Exhibitions here to ensure items can be taken to and picked up from the venue without any concern

All deliveries should be addressed in the following way:
‘BNMS Spring Meeting 2024 13 - 15 May 2024’
‘The stand number, Hall 1 and the name of exhibiting company’
‘The name of the exhibiting companies on-site contact and their mobile number’
ICC Belfast
2 Lanyon Place
Belfast
BT1 3WH

Flyers We are not charging for flyers this year.
But you are welcome to bring your own flyers.
We will provide an Information Area for all flyers and booklets.
We expect in the region of 500 delegates, so feel free to bring them along or send ahead to be made available in the Information Area.

Find out more about the Social Events during the meeting here

If you would like to purchase tickets to the Awards Dinner or After party contact carolineoxley@bnms.org.uk

BNMS Fun Run - The BNMS Fun Run will take place on the morning of Tuesday 14th May - route and details tbc

The BNMS event app will be launched closer to the time and more can be found here

Once the app is available for exhibitors to set up their virtual stands, the BNMS will be in touch




 

 

© 2013 BNMS unless otherwise stated.
The BNMS is a registered as a company in England and Wales with number 08082786.  The BNMS is a charity governed by the rules of the Charity Commission for England and Wales - Registered Number 1150234.  Registered Office: The Royal College of Physicians, 11 St. Andrew's Place, Regent's Park, London NW1 4LE.
The British Nuclear Medicine Society is not able to give specific clinical advice to members of the public. If you are concerned about your scan or therapy please seek the opinion of a nuclear medicine clinician where you were seen or the clinician who referred you to the department or your GP.
Enquiries related to issues such as internships and work experience opportunities, should be directed to the relevant professional body e.g., for radiologists, this will be the Royal College of Radiologists.